OS PROJETOS DA CASA
Entender as plantas, perspectivas e suas especificações
ajudam a esclarecer suas dúvidas com o profissional arquiteto ou engenheiro
logo após a entrega do anteprojeto. A leitura e interpretação desses desenhos
pode ser um pouco difícil para quem está construindo pela primeira vez, mas
cabe ao profissional contratado (arquiteto ou engenheiro) explicar e evidenciar
todos os pontos do projeto, fazendo com que o futuro proprietário entenda os
detalhes do projeto ainda durante as reuniões de criação do trabalho evitando
assim surpresas desagradáveis durante a execução da sua obra.
Uma das maiores dificuldades dos futuros proprietários é
visualizar a planta baixa de um projeto e imaginar como ficará determinado
ambiente ou fachada. Para o entendimento do projeto arquitetônico, sempre se
parte da planta baixa. Ela dá uma visão do topo como se a obra tivesse sido
cortada e nela pode se ver a disposição dos cômodos e a ligação entre eles e
suas medidas. Os desenhos em perspectiva maquetes tridimensionais e outros
recursos digitais são muito utilizados para o entendimento do projeto.
A planta da estrutura apresenta a locação de elementos
estruturais como pilares, vigas, fundações, entre outros. Deve ser feita logo
após a conclusão do projeto arquitetônico pois algumas modificações podem ser
solicitadas na arquitetura como por exemplo, o deslocamento de uma porta ou
janela para evitar um gasto excessivo na estrutura, já as plantas de
instalações hidráulicas e elétricas apresentam uma simbologia padronizada que representa
a função , posição e altura dos pontos de abastecimento. O engenheiro autor do
projeto, fica encarregado de explicar aos clientes toda a simbologia e
esclarecer eventuais dúvidas.
Casa projeto possui as características que a casa terá, como
escadas, portas, janelas, paredes, vigas e pilares, sua apresentação gráfica
varia de profissional para profissional quanto as técnicas e aparência.
PROJETO ARQUITETONICO
É formado por um conjunto de várias plantas e outros
desenhos técnicos. Faz parte deste grupo as perspectivas que mostra ao futuro
morador como ficará a nova casa.
FACHADAS
Visualização da frente e laterais da residência.
CORTES
Existem dois tipos, o
longitudinal e o transversal. O longitudinal mostra o corte da casa do fundo a
frente, onde podem ser vistos a implantação do terreno, os níveis, o telhado a
projeção das paredes e das esquadrias. Já o corte transversal mostra os mesmos
elementos, cortando a casa de lado a lado.
PLANTA DE IMPLANTAÇÃO
Conhecida como planta de situação, tem como função mostrar a
distribuição de edificações e outros elementos construídos no terreno.
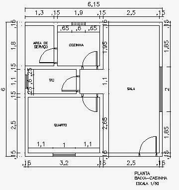
PLANTA BAIXA
Representa a visão da residência de cima para baixo. Nela
devem constar a distribuição e dimensões de todos os ambientes da casa, portas
e janelas devidamente posicionadas entre outros. Cada pavimento deve ter uma
planta baixa.
PLANTAS DE ESTRUTURA
Elaborado pelo Engenheiro civil especializado em cálculo
estrutural, estas plantas definem todos os elementos estruturais da residência.
Nelas deverão constar as plantas de infra-estrutura que englobam os elementos
estruturais que ficam abaixo do solo como fundações, estacas, sapatas e vigas
baldrames e as plantas de superestrutura que são os elementos que ficam acima
do solo como pilares, lajes e vigas.
SAPATAS
Fundações ou sapatas são o que fica sob a terra para manter
a construção firme, sem o risco de inclinar-se, rachando as paredes em virtude
de variações no terreno.
A profundidade e a largura das sapatas, dependem da obra a
ser levantada sobre elas. Dependerão, também, do tipo de terreno e do tamanho
da obra, para cada 60 m2 de construção, aconselhamos pelo menos 9 sapatas
Considerando uma casa padrão sobre a qual se poderá erguer
um pavimento extra, mantendo-se as mesmas funções e alicerces.
- Tipo de terreno - Rochoso (muito firme) Dimensões 40 x 40 cm Profundidade 50 centímetros
- Tipo de terreno - Arenoso (compacto) Dimensões 60 x 60 cm Profundidade 80 centímetros
- Tipo de terreno - Úmido (de boa resistência) Dimensões 100 x 100 Profundidade 0,95 centímetros
Quando mencionamos terrenos úmidos estamos nos referindo a
áreas com lençol de água no nível das fundações. Se você começar a cavar e
surgir água facilmente, precisará drenar o local utilizando bombas especiais
para esgotar totalmente o lençol de água
A vantagem da sapata corrida é que ela pode ser
confeccionada em alvenaria e não necessita de vigas e pilares para a sustenção
do peso da parede e do telhado.
A desvantagem da sapata simples é que ela necessita de vigas
e pilares para fazer a distribuição e a concentração do peso da parede e do
telhado.
- Telhado com estrutura de madeira e telha de barro do tipo francesa. PESO LINEAR 1.064 kgf / m
- Telhado com estrutura de madeira e telha ondulada de fibro-cimento. PESO LINEAR 408 kgf / m
- Forro de estuque. PESO LINEAR 220 kgf / m
- Parede em alvenaria de tijolo de Barro assentado em 1/2 tijolo com revestimento nos 2 lados. PESO LINEAR 675 kgf / m
- Parede em alvenaria de tijolo de Barro assentado em 1 tijolo com revestimento nos 2 lados. PESO LINEAR 1.390 kgf / m
- Laje de piso com carga de pessoas e móveis de 160 kgf / m2. PESO LINEAR 1.440 kgf / m
Uma boa sapata depende de dois pontos fundamentais: o
concreto e a ferragem. O interior da sapata é constituído da malha de ferro.
A malha será feita fora do buraco, nas medidas informadas na
tabela já fornecida. Use um ferro na vertical para cada 20 cm de malha; assim,
em uma sapata de 40 x 40 cm, teremos 9 ferros de 3/8" 10mm na vertical,
com estribos de 1/4", também colocados a cada 20 cm
O buraco será um pouco maior que a malha, de forma que o
concreto envolva os ferros por completo.
Antes da malha ser colocada no buraco, deve-se espalhar uma
camada de concreto no fundo, onde ela assentará.
A amarração dos ferros é feita com arame cozido. Há várias
formas de amarração. Passe o arame; depois, junte as duas pontas para torcê-la,
com o alicate, da esquerda para a direita. A amarração é muito importante, pois
evita que os ferros fiquem escorregando e saindo da posição desejada.
Partindo do fundo da malha, amarrados nos ferros centrais,
ficarão os ferros para a coluna. Eles se projetaram 0,3 cm acima da malha e suas
dimensões dependerão da largura do tijolo a ser usado (serão sempre um pouco
menores que a largura do tijolo utilizado para erguer a parede). Sobre o
assunto, é importante ler os alicerces, paredes e vigas/ colunas. Para a nossa
casa padrão, pode usar para estes ferros a bitola 3/8" 10mm. Estribos,
como você já sabe, são os ferros menores, que neste caso estão colocados na
horizontal. Embora as dimensões variem, deve-se usar a mesma proporção, ou
seja, um ferro para cada 20 cm, seja na vertical ou na horizontal.
A escolha do tipo de fundação deve ser feita sob a
assistência de um Profissional do ramo de fundações como um Técnico de
Edificações, Engenheiro Civil ou Geólogo.
PLANTAS DE ELÉTRICA E
HIDRÁULICA
Assim como o projeto estrutural, o profissional
especializado em instalações hidráulica e elétrica precisa de uma cópia do
projeto arquitetônico para poder desenhá-las. Nestas plantas são identificadas
todas as marcações, pontos, caminhos por onde passarão as instalações assim
como todos os materiais. Além disso, possuem muitos símbolos todos legendados.
Detalhe do projeto elétrico residencial
Detalhe do projeto hidráulico
AGUA FRIA RESIDENCIAL
O uso do PVC para água e esgoto
simplificou muito a confecção destas instalações, vamos mostrar aqui o diagrama
básico das instalações prediais de água fria em residências.
Quem teve a oportunidade de
trabalhar a confecção de instalações hidráulicas com tubos de ferro sabe o
quanto era difícil trabalhar com este material. Os tubos de PVC mudaram
totalmente esta situação, hoje qualquer pessoa com um pouco de treino pode
fazer uma instalação aceitável. Para arquitetos e para quem se aventura a
construir por conta própria é interessante entender como funciona um sistema
predial de água fria, para ajudar no próprio projeto arquitetônico. Este
precisa prever os locais de passagem dos tubos, bem como a localização das
válvulas, registros de controle e aparelhos sanitários.
A instalação de água fria começa
na rede pública ou, no caso de locais afastados, no poço onde se coleta a água.
vamos supor que a residência está ligada à rede pública, que corre pela calçada
ou até mesmo pelo meio da rua.
Quando se faz o pedido de ligação
de água a concessionária faz uma sangria na tubulação que chega até um registro
localizado junto ao alinhamento do lote. Este registro pertence à
concessionária, que o usa para interromper o fornecimento caso o usuário não
pague a conta.
Do registro de entrada da
concessionária parte uma ligação que chega até o hidrômetro, que faz parte de
um conjunto chamado popularmente de “cavalete”. O cavalete é constituído pelo
medidor de consumo também pertencente à concessionária e o registro geral da
água fria, este já pertencente ao usuário. Pelas normas das concessionárias, o
cavalete pode ficar até 1,50 m afastado da frente do lote, mas é conveniente
colocá-lo bem na testada, voltado para fora, possibilitando a leitura do
consumo sem que o funcionário da concessionária precise adentrar o imóvel.
Do cavalete de entrada sai uma
ramificação que sobe até o reservatório superior, a famosa “caixa d'água”. No
final desta alimentação, dentro da caixa d'água, está a torneira de bóia,
encarregada de manter o nível da água lá armazenada. Da mesma saída do
cavalete, também se costuma levar uma tubulação que alimenta a cozinha
(torneira e filtro) e também a área de serviço, locais que precisam de mais
pressão e/ou de água mais límpida. Este ramal extra costuma ser usado também
para alimentar as torneiras de jardim, pois a maior pressão disponível facilita
o uso de mangueiras para lavagem e irrigação.
Além da tubulação de alimentação,
que termina na torneira de bóia, existem na caixa d'água mais três tipos de
ligação: ladrão, lavagem e barriletes.
Esquema de distribuição de água
em uma residência. O ladrão fica localizado na parte superior da caixa d'água,
próximo à borda. Sua função é evitar que água transborde, caso a torneira de
bóia falhar. Justamente para isto, o diâmetro do ladrão tem que ser maior do
que a tubulação de entrada. Em geral, nas residências se usa tubo de 25 mm na
alimentação e de 32 mm no ladrão e na tubulação de lavagem. Esta última fica
exatamente no fundo, bem rente à borda, e sua função é esvaziar totalmente a
caixa para limpeza ou manutenção. Para tanto a tubulação de lavagem tem um
registro, para ser aberto única e exclusivamente nesta ocasião.
Chegamos então aos barriletes.
Este é o nome que se dá para as saídas onde serão conectadas as tubulações de
distribuição da água fria pelo imóvel. Mas qual é a diferença entre um
barrilete e a saída para lavagem? O barrilete coleta a água pelo menos 10 cm
acima do fundo da caixa, para evitar que se use água contaminada pelos
depósitos que vão sedimentando no fundo da caixa. A saída para lavagem coleta a
água o mais próximo possível ao fundo, justamente para retirar as partículas
sedimentadas.
RAMAIS DE DISTRIBUIÇÃO
Os barriletes são o ponto de
ligação entre os ramais de distribuição e a caixa d’água. Os ramais de
distribuição, por sua vez, levam a água fria através do imóvel conduzindo-a até
os pontos de consumo, constituídos pelos chuveiros e torneiras. Em pequenas
obras, costuma-se sair com um tubo de 50 mm (1 1/2”) para alimentar o banheiro
(com válvula de descarga) e outra de 25 ou 32 mm para alimentar cozinha, área
de serviço e banheiros com bacia de caixa acoplada. Em obras maiores, com mais
cômodos, é conveniente fazer uma saída para cada banheiro, outra para a cozinha
e outra para a área de serviço. Com isto, um ambiente não interfere no
funcionamento do outro, pois ficam totalmente independentes.
Caso o banheiro utilize caixa
acoplada ao invés de válvula de descarga, pode ser alimentado com um único tubo
de 25 ou 32 mm, que servirá também para o chuveiro e pia. Se o projeto estiver
prevendo aproveitamento de água de chuva, de cisterna ou de reuso, deverá haver
uma caixa d’água e uma tubulação especificamente para o vaso sanitário, pois
não se deve utilizar água reciclada no chuveiro, nas pias, na cozinha e na área
de serviço.
As medidas de tubo que indicamos
acima são genéricas, mas são também as mais usadas, tanto que acabaram virando
padrão para os dispositivos encontrados no comércio. Atendem realmente à
maioria dos casos de pequenas obras, mas se você tiver um projeto diferente,
como um comércio ou indústria, ou até mesmo uma residência um pouco mais
sofisticada precisará dimensionar a tubulação, conforme veremos adiante.







+(1).jpg)





